| штат: | |
|---|---|
| Количество: | |
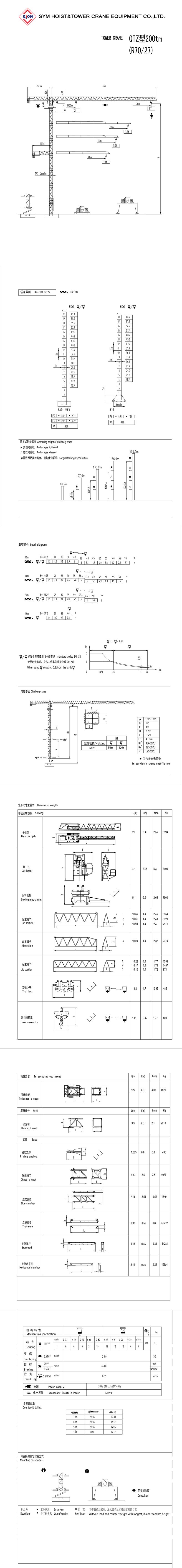
R70/27
SYM
8426200000

Кран -кран из топлесс характеризуется с помощью компактной головки и мобильной каюты. Дизайн без подвесных линий, взятых из технологии Linden, облегчает сборку башенных кранов с плоской вершиной и приводит к крупной экономии, особенно в проектах, в которых работают несколько кранов, работающих одновременно.

Symist & Tower Crane Equipment - это профессиональный производитель платформы крана и подъемных платформ в Китае. Мы поставляем все виды оригинальных запасных частей для башни. Наши преимущества 1) 100% оригинальных деталей 2) Больше 20+ опыта 3) защитить права наших клиентов, от предварительных продаж до послепродажных процессов Часто задаваемые вопросы Q1: Вы торговая компания или фабрика?
Q7: Какую информацию я должен предоставить с помощью запроса? A7: количество, модель |

Кран -кран из топлесс характеризуется с помощью компактной головки и мобильной каюты. Дизайн без подвесных линий, взятых из технологии Linden, облегчает сборку башенных кранов с плоской вершиной и приводит к крупной экономии, особенно в проектах, в которых работают несколько кранов, работающих одновременно.

Symist & Tower Crane Equipment - это профессиональный производитель платформы крана и подъемных платформ в Китае. Мы поставляем все виды оригинальных запасных частей для башни. Наши преимущества 1) 100% оригинальных деталей 2) Больше 20+ опыта 3) защитить права наших клиентов, от предварительных продаж до послепродажных процессов Часто задаваемые вопросы Q1: Вы торговая компания или фабрика?
Q7: Какую информацию я должен предоставить с помощью запроса? A7: количество, модель |